東京駅から約8.3km圏の都心近接ポジションに。
「メインステージ四ツ木」は、都心へダイレクトアクセスも可能な京成押上線「四ツ木」駅へ徒歩12分。
東京駅より約8.3km圏の都心隣接ポジションに誕生します。
株式会社青山メインランド 代表 西原良三
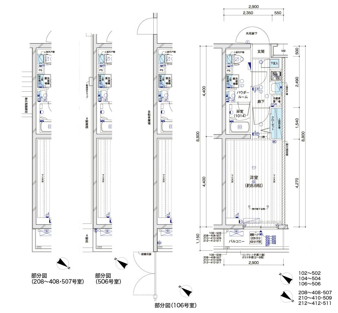
| 物件名 | メインステージ四ツ木 |
| 所在地 | 東京都葛飾区堀切1丁目2番23 |
| 交通情報 | 京成押上線 「四ツ木」駅 徒歩12分 |
| 構造・規模 | 鉄筋コンクリート造 地上5階建て |
| 総戸数 | 61戸 |
| 販売戸数 | 60戸 |
| 間取り | 1K(60戸) |
| 専有面積 | 25.52㎡(60戸) |
ログイン・新規会員登録
Online Stageでは、会員様専用のサービスをご利用いただけます。
既に会員ご登録済みの方は、ご登録したIDとパスワードでログインしてください。まだご登録されてない方は、新規会員ご登録手続きへお進みください。
旧メンバーズクラブ会員のお客様はこれまで利用されていたIDとパスワードでログイン頂けますようお願い致します。
会員様ログイン